ID CP2531611

Apartament Modern în Rediu|3Camere 105.000€ 0% Comision

Această proprietate nu mai este activă,
te invităm să vizualizezi proprietăți similare

ID CP2531611

105,000 € + 21% TVA

Apartament cu 3 camere de vânzare
Popas Pacurari, Iasi
63.6 mp
2025

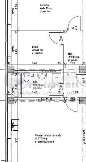
Vă propunem spre vânzare un apartament modern, cu 3 camere, situat în zona Rediu.Cu o suprafață utilă de 63,6 mp și loc de parcare inclus în preț, acest apartament este ideal pentru o familie, un cuplu sau ca investiție imobiliară.

Compartimentare eficientă:

Dormitor principal (14,25 mp) – spațios și luminos;

Birou/dormitor secundar (9,30 mp) – perfect pentru lucrul de acasă sau cameră pentru copil;

Living cu bucătărie open-space (27,75 mp) – zonă generoasă pentru relaxare și dining;

Baie (5,75 mp) – finisaje moderne și spațiu optim;

Hol (6,55 mp) – oferă circulație fluentă între camere.

Caracteristici importante:

Se vinde nemobilat, oferindu-vă libertatea de a amenaja spațiul după propriul gust;

Finisaje de calitate,

Predare in octombrie 2025

Loc de parcare privat inclus în preț;

Apartamentul dispune si de o curte de 25mp

Situat într-o zonă liniștită, în plină dezvoltare, cu acces facil către oraș și mijloace de transport.

Citește mai mult

  • Tip apartament
    Apartament
  • Compartimentare
    Decomandat
  • Număr camere
    3
  • Dormitoare
    1
  • Număr bucătării
    1
  • Număr băi
    1
  • Etaj
    Parter
  • Suprafață utilă
    63.6 mp
  • Suprafață curte
    25 mp
  • Disponibilitate
    Imediat
  • Număr locuri parcare
    1
  • Imobil
    Bloc de apart.
  • Stadiu construcție
    În construcție
  • An construcție
    2025
  • Construcție nouă
    Da

Facilități

Apă
Bucătărie închisă
Canalizare
CATV
Curent
Gaz
Iluminat stradal
Încălzire prin pardoseală
Internet
Izolație exterioară
Mijloace de transport în comun
Parcare deschisă
Străzi asfaltate
Telefon
Necesare:

Site-ul nu poate funcționa corect fără aceste cookie-uri. Vezi cookie-urile

Statistică:

Strângem statistici anonime despre voi, vizitatorii unici, pentru a vă îmbunătăți experiența dumneavoastră. Vezi cookie-urile

Marketing:

Pentru a ne promova mai eficient serviciile noastre, folosim cookies pentru a vă identifica și a vă oferi proprietăți și servicii personalizate. Vezi cookie-urile

Acest site folosește cookies, află detalii. Alege ce tipuri de cookies dorești să permitem: