ID CP2779969

Ap. Duplex , 2 cam , Nicolina 2 • 71 mp utili • et 5/5 • 87.900 EUR

ID CP2779969

87,900 € (negociabil)

Apartament cu 2 camere de vânzare
Nicolina, Iasi
71 mp
1983

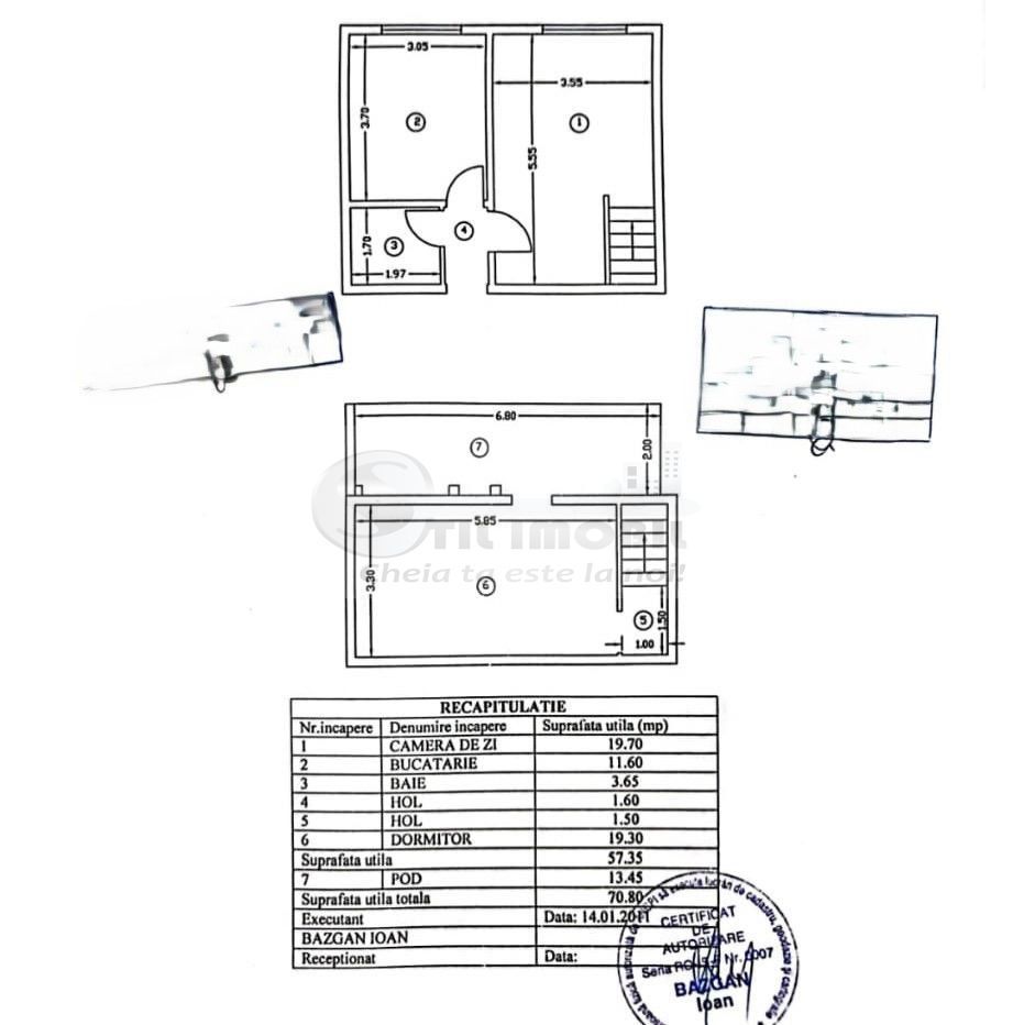
Spațiu luminos, renovat complet, ideal pentru cuplu sau investiție. Apartament tip duplex de 70,8 mp utili, decomandat, situat la etajul 5 într-un bloc din zona Nicolina, Iași. Finisaje moderne, mobilat și utilat complet, cu un pod generos de 13,45 mp utili ideal pentru depozitare sau dressing.

5 lucruri esențiale:

Suprafață utilă: 57,35 mp + 13,45 mp pod

Confort: mobilat, utilat, centrală proprie, AC

Stare: renovat complet, instalații noi

Etaj: 5, bloc construit în 1984

Acces: zona Nicolina, orientare estică, lumină naturală din plin

Compartimentare excelentă:

Living spațios, bucătărie închisă și luminoasă, baie cu cadă, dormitor matrimonial în zona de mansardă, plus holuri de acces și pod util cu intrare separată, ideal pentru depozitare organizată.

Finisaje moderne:

Pardoseli laminate de calitate

Gresie și faianță cu aspect marmorat

Aer condiționat în living și dormitor

Uși albe cu design minimalist

Balustradă decorativă metalică pe scări interioare

Mobilier complet de bucătărie cu electrocasnice Beko

Potrivit pentru: cuplu, tineri profesioniști sau investitori — mulțumită compartimentării funcționale, finisajelor moderne și poziționării bune în oraș.

Acces rapid la transport public, magazine, farmacii, Piața Nicolina.

Aproximativ 10–15 min până în Centru / Palas.

Pentru detalii sau programare vizionare: Griger Silviu 0753950950

Preț: 87.900 EUR (negociabil)

Citește mai mult

  • Tip apartament
    Apartament
  • Număr camere
    2
  • Dormitoare
    1
  • Număr bucătării
    1
  • Număr băi
    1
  • Etaj
    5
  • Suprafață utilă
    71 mp
  • Disponibilitate
    Imediat
  • Imobil
    Bloc de apart.
  • An construcție
    1983
  • Număr etaje clădire
    5
  • Are mansardă
    Da
  • Are pod
    Da

Facilități

Apă
Canalizare
CATV
Curent
Gaz
Iluminat stradal
Internet
Mijloace de transport în comun
Străzi asfaltate
Telefon
Silviu Griger - Stil Imobil
Silviu Griger
JUNIOR BROKER

0753.950.950


Solicită chiar acum o vizionare
Telefon
Sună acum Solicită vizionare
Necesare:

Site-ul nu poate funcționa corect fără aceste cookie-uri. Vezi cookie-urile

Statistică:

Strângem statistici anonime despre voi, vizitatorii unici, pentru a vă îmbunătăți experiența dumneavoastră. Vezi cookie-urile

Marketing:

Pentru a ne promova mai eficient serviciile noastre, folosim cookies pentru a vă identifica și a vă oferi proprietăți și servicii personalizate. Vezi cookie-urile

Acest site folosește cookies, află detalii. Alege ce tipuri de cookies dorești să permitem: