ID CP2354253

NOU PLATOU GALATA APARTAMENT 2 CAMERE 57MP - 80,000 €

ID CP2354253

80,000 €

Apartament cu 2 camere de vânzare
Nicolina, Iasi
57 mp
2023

FOTOGRAFII INFORMATIVE

IDEAL INVESTITIE !!

COMISION 0%

Îţi doreşti o investiţie sigură un dezvoltator de încredere şi un produs imobiliar a cărui valoare să crească în timp?

Locul tău este acolo unde simţi că investiţia ta este în siguranţă.

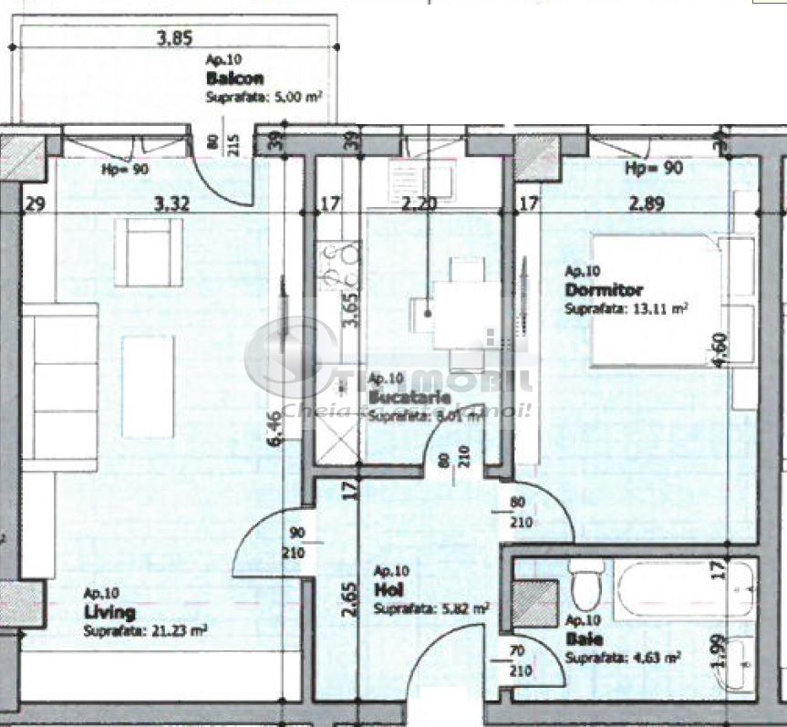
Va propun spre achizitie apartament de top cu doua camere tipul decomandat suprafata utila 52.05 mp plus 5 mp balcon .

Ansamblul rezidenţial din care face parte este compus din 7 imobile distincte cu un regim de înălțime D+P+5. Dispune de 271de apartamente cu 1 2 și 3 camere locuri de parcare subterane și supraterane de spații comerciale P+E.

Este noua etapa a unuia din cele mai mari complexe rezidentiale situat in zona PLATOU GALATA sos. Voinesti la numai 45 km de Palas si 15 km de Mall Miroslava pe traseul autobuzelor 23 si 501 CTP Iasi zona in plina dezvoltare 2 supermarketuri (Profi 100 m La doi Pasi 200 m statie mijloc de transport 50 m sala fitness 100 m) cu acces din Nicolina Belvedere.

Dotari si Finisaje

-structură de rezistență pe cadre planșee beton armat închideri din caramida

-termoizolație polistiren expandat 10cm tencuială decorativa

-centrală termică

-închideri interioare din zidărie caramida

-instalație termică apă rece și caldă țeavă PEX cu distribuitoare

-tâmplărie exterioară - 7 camere tripan baghetă caldă sticlă

-băi complet utilate cu mobilier și obiecte sanitare

-parchet laminat

-placări ceramice

-uși de interior MDF cu toc reglabil

-ușă de exterior metalică

-balcoane cu balustrade de sticlă sau zidărie în funcție de tipul apartamentului

-lifturi moderne de 6-8 persoane (import Germania)

De ce sa colaborati cu agentia noastra?

Daca cumparati prin intermediul Stil Imobil beneficiati de:

Siguranta ca ati luat decizia corecta si ati ales repede si bine casa ideala.

Respect pentru timpul dumneavoastra pretios.

Consiliere sincera si onesta cu raportul calitate -pret cel mai bun .

Citește mai mult

  • Tip apartament
    Apartament
  • Compartimentare
    Decomandat
  • Număr camere
    2
  • Dormitoare
    1
  • Număr bucătării
    1
  • Număr băi
    1
  • Geam la baie
    Da
  • Etaj
    2
  • Suprafață utilă
    57 mp
  • Suprafață construită
    57 mp
  • Disponibilitate
    Imediat
  • Confort
    1
  • Număr balcoane
    1
  • Imobil
    Bloc de apart.
  • An construcție
    2023
  • Număr etaje clădire
    5

Facilități

Apă
Apometre
Canalizare
Centrală proprie
Contor gaz
Curent
Faianță
Gaz
Geamuri termopan
Gresie
Interfon
Izolație exterioară
Lift
Parchet
Străzi asfaltate
Ușă intrare metal
Vopsea lavabilă
Catalin Zelinca - Stil Imobil
Catalin Zelinca
Senior Broker

0753.950.950


Solicită chiar acum o vizionare
Telefon
Sună acum Solicită vizionare
Necesare:

Site-ul nu poate funcționa corect fără aceste cookie-uri. Vezi cookie-urile

Statistică:

Strângem statistici anonime despre voi, vizitatorii unici, pentru a vă îmbunătăți experiența dumneavoastră. Vezi cookie-urile

Marketing:

Pentru a ne promova mai eficient serviciile noastre, folosim cookies pentru a vă identifica și a vă oferi proprietăți și servicii personalizate. Vezi cookie-urile

Acest site folosește cookies, află detalii. Alege ce tipuri de cookies dorești să permitem: